BV Umbau / Aufstockung ev. Gemeindezentrum
Berliner Straße, Wetzlar
Projektbeschreibung
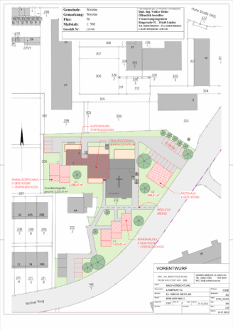
Das vorhandene Gemeindezentrum der evangelischen Kirche mit 2 Wohnungen im Bestand soll umgebaut und aufgestockt werden. Hintergrund ist der geringere Flächenbedarf für kirchliche Zwecke in dem in den 1960er Jahren errichteten Gemeindezentrums.
Eine Teilfläche im EG wird zu 2 Wohnungen umgebaut. Der Zugang zur Kirche über die Vorhalle bleibt erhalten.
Der mittlere Teil des Baukörpers wird aufgestockt zur Schaffung von 2 Wohnungen. Der westliche Baukörper wird durch ein Staffelgeschoss aufgestockt, so dass eine Begrenzung auf 2 Vollgeschosse gewährleistet ist.
Die beiden vorhandenen Wohnung werden energetisch saniert.
Das Untergeschoss soll für Zwecke der Kirchengemeinde umgebaut und saniert werden. Die notwendigen Stellplätze werden auf dem Grundstück nachgewiesen.
Als weitere Bauabschnitte sind die Errichtung eines Doppelhauses, eines Ärztehauses und von 3 Reihenhäusern auf den Freiflächen des Grundstücks geplant. Damit kann eine vertretbare Verdichtung der Fläche erfolgen und dringend benötigter Wohnraum in guter Lage entstehen
Innerstädtische Wohnbebauung – Kornwestheim

In zentraler Lage der Innenstadt von Kornwestheim sieht die Planung für 30 Wohnungen eine differenzierte städtebauliche Figur vor, die die Raumkanten in der Weimarstrasse neu definiert.
Über der gemeinsamen Tiefgarage der beiden Baukörper liegt eine vielfach nutzbare Freifläche mit halböffentlichem Charakter.
Die Höhenentwicklung reagiert auf die umgebende Bebauung.

Realisierung für 2024/25 geplant.




